我大哥女兒配合公司調派,即將和她未來先生一起在南科上班。時間也過得真快,總錯覺她才剛初出茅廬,如今已準備步入婚姻,兩人買了一間小公寓共組家庭,未來也有計畫要生小孩。
▼公寓格局是2房2廳2衛浴2陽台,室內實際坪數大約17坪,最棒的是還有一個平面車位!非常加分!
┃原始建商平面圖
格局很滿意,房間都有對外窗,採光很好。
┃找設計師
兩個都是南科工程師,理性派思考其實非常清楚自己要什麼,也都列得很詳細,只是需要一位能懂他們的設計師幫他們統整規劃,將想要變成現實。(需求清單我寫在後面完工開箱段落)
後來做他們案子的設計師阿石是我推薦的,因為他們預算不高大概5.60萬,不是每個設計師都願意接,加上他們對台南也不熟,我這個長輩就熱心幫忙了!大哥也拜託我多照顧照顧XD
剛好之前看過阿石的完工案場覺得很不錯,問阿石有沒有在接小資預算裝潢,有在接!OK轉介紹,他們一來一往討論很順利,達成共識安排開工!
┃規劃平面圖
阿石將他們想要的規劃進去,如何擺放能做到最大空間利用、高度多少最方便使用等等。
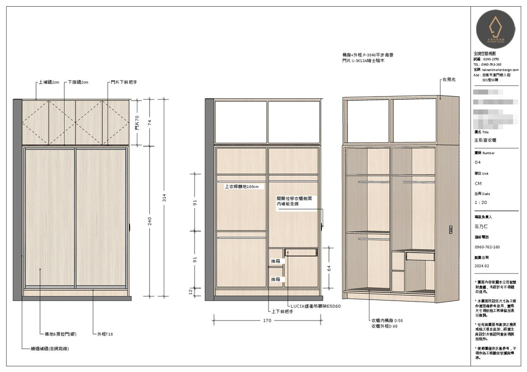
┃櫃子設計圖
資訊派一定很愛,因為我姪女他們就非常喜歡,櫃子高度、材質用料、顏色、櫃子格式等等,標示清清楚楚,資訊透明讓他們相當放心,才不會遇到給A做B的問題!
┃3D渲染圖
雖然是裝潢小工程,但還是獲得3D渲染圖,整體很用心。
┃施工過程
木工結合系統櫃裝潢,裝潢速度會快很多,也能做出更多變的設計。
▲木工做電視牆,搭骨架。
▲上矽酸鈣板,後面空間用來拉電線,完美藏線!
▲電視櫃和鞋櫃使用系統櫃,工廠切好拿到現場安裝,速度比較快。
▲木工做冷氣包管。
▲做了小弧形順下來,化解樑壓床的問題。
▲系統衣櫃。
▲期待完工!
┃新家開箱
/玄關需求/
1.需有玄關以及落塵區,回家有一個先整理的空間,有地方掛髒衣&鑰匙置物櫃&包包收納櫃。
2.希望用懸浮櫃體下方可以擺放常穿的鞋子,穿鞋椅可有可無。
3.希望加入隱藏式全身鏡,不能直接看到鏡子。
4.鞋子需40雙收納空間,含3雙長靴。
5.安全帽一大一小放置櫃。
6.解決穿堂煞問題。
▲櫃體做了中空腰身,可以放小物品;另外阿石使用金屬鐵件造型玻璃屏風,既可以擋煞又能保持採光。
/客廳需求/
1.不要開放式層架設計
2.需要一小區的展示櫃(高低可變換)主要展示公仔&扭蛋。
3.需要放PS5&Switch。
4.客廳擺放的家電:Dyson空氣清淨機、掃地機器人。
5.電視盡量靠牆,不要突出牆面太多,線需收納空間。
6.需協助建議家具尺寸:沙發&茶几。
▲電視櫃體延伸至玄關,以鐵件玻璃屏風區分兩個空間,既能合理規劃空間使用,櫃體適當露出又能保持空間感。因為會使用掃地機器人,所以客廳到玄關的櫃體全部都是做懸空式,也配有插座可以充電。
▲沙發&茶几聽阿石的建議挑選適合的尺寸,雙人沙發+小茶几,滿足功能性也不會讓空間變得很擁擠。電視則還在挑選,後來他們又覺得是不是可以改用投影幕🤣因為看到朋友家裡有用覺得很酷。
▲電視牆用特殊塗料做的質感,有一種粗獷的原始感,紋理也很特別,我個人滿喜歡的!
▲角落也是做了小弧形,順順地避開柱子直角,也多了一些設計感。
/廚房需求/
1.不需餐桌,習慣在客廳或書桌用餐,但需要電器櫃。
2.冰箱尺寸:166(高)*60(寬)*62(深)。
3.需收納的小家電:氣炸鍋*1、微波爐*1、小電鍋*2、快煮壺*1、兩個炒鍋。
4.極少開伙,都是即食料理,頂多泡麵煮粥煮湯、微波食品、氣炸食品、沖泡飲料湯品等等。
5.收納櫃需求:需有小櫃(高高的那種)放置掃把、拖把、洗廁用品等等。
▲小小的鐵件工作台,和鐵件屏風元素呼應,也滿有個性的!
▲電器櫃看起來質感很不錯,平台有做滑軌,拉出來做料理比較方便。
主臥室因為他們已經入住,很多私人物品不方便拍照,就用文字分享給大家。整體來說就是單純的睡眠空間,一張舒適好眠的雙人床墊、一個大衣櫃放置雙人衣物。
/主臥需求/
1.極簡,不需要梳妝台、鏡子、電視。
2.要有衣櫃&一個小床頭櫃(目前手上已有現成一組40*40淺灰床頭櫃),床也可加入收納功能。
3.不要開放式收納,衣櫃門要全遮蔽,不喜歡私人衣物被看到,主要使用吊掛收納,少量折疊,衣櫃中間不分割,衣櫃深度>62。小石有用滑門,減少開關門所佔據的空間。
4.床頭做了雙切開關,方便睡覺關燈。
5.暖色系為主。
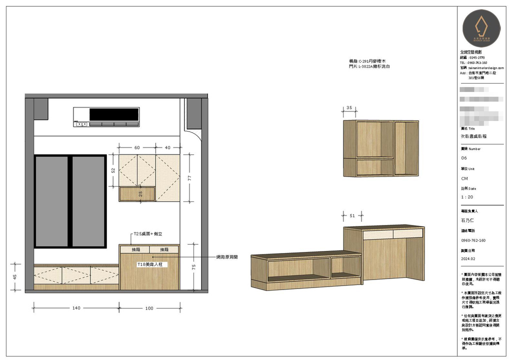
/次臥需求/
1.主要功能以收納為主,至少能放一張單人床,未來可以當小孩獨立房間。
2.需放置的裸露物品:電腦螢幕(桌機)、主機、音響、鍵盤。
3.需收納物品:保養品(櫃內高度20cm以上)、部分文書用品、一小排書。
4.看起來不能很雜亂。
▲現在還沒有小孩,所以次臥暫時當多功能房、書房。次臥衣櫃也是做滑門,不用浪費開關門的距離!
▲簡單溫暖的小空間,白天透著陽光很舒服,鋪了木地板,想坐在地板上辦公也可以。
▲小臥榻也很適合窩著放空、或讀本放鬆身心的小冊。
┃入住心得
最後補充他們的感想!
姪女說他們也知道自己很細節🤣但常用物品習慣了就會一直用,就像對這間房子的期待也希望能住很久,所以希望處處是量身打造,很感謝阿石真的滿足了他們的每個需求!尤其是他們對風水禁忌很講究,像是:穿堂煞、床頭不能壓樑、不能有櫃、床頭需靠牆、床頭&尾不對門,能在小坪數房子完美避開,已經是再三細心規劃過的成果!
所以現在入住起來非常順心,下班想到可以回到自己溫馨的家,每每都覺得很放鬆,果然有自己專屬的家的感覺真的很棒!希望也把這份喜悅分享給各位!
┃裝潢項目
1.保護工程:全室地面PP板+1分夾板
2.木作工程:全室冷氣包管+電視牆面+局部天花板
3.水電工程:各式開關插座延伸+弱電新增
4.油漆工程:全室木作部分上水性水泥漆+電視牆塗料+牆面局部修補+入住後修補一次
5.系統櫃工程:玄關+客廳+廚房+2臥室
6.鐵件工程:鐵件造型屏風+玻璃
7.總費用:55萬元
┃設計公司
設計師:阿石,全境空間規劃
手機:0960-762-160
LINE ID:nbalakers212
地址:台南市東區東門路二段301巷56號
門市服務時間:一到五8:00-18:00
服務地區:台南、高雄
